Freistehendes Haus mit 3+2 Schlafzimmern in São Bernardo, Aveiro
549 000 €
3
3
2
172 m²
426 m²
602 m²
Einmalige Gelegenheit! Freistehendes Haus mit 3+2 Schlafzimmern in São Bernardo, Aveiro – Großzügigkeit, Licht und Privatsphäre
Stilvolles Wohnen am Stadtrand von Aveiro...
Nur 7 Minuten vom Forum Aveiro und 5 Minuten von der Plaza Glicínias entfernt, in der ruhigen Gemeinde São Bernardo, befindet sich dieses freistehende Haus auf einem 971 m² großen Grundstück mit optimaler Sonneneinstrahlung, insbesondere durch die Südseite. Das Haus besticht durch seine großzügigen und hellen Räume, die eine optimale Raumaufteilung ermöglichen.
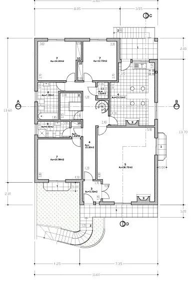
Im Obergeschoss steht die Funktionalität im Vordergrund. Natürliches Licht durchflutet den offenen Wohnbereich und schafft eine gemütliche und komfortable Atmosphäre – der perfekte Ort für Gespräche und entspannte Momente.
Die moderne und voll ausgestattete Küche ist hell und verfügt über eine zentrale Kochinsel, die zum Kochen und gemeinsamen Essen einlädt und eine Verbindung zum Wohnzimmer herstellt. Die kleine überdachte Terrasse auf der Ostseite lädt zu sonnigen Frühstücken ein.
Der private Bereich bietet drei Schlafzimmer, die Ruheoasen der Entspannung versprechen. Eines davon ist eine komfortable Suite, die Wohlbefinden und Privatsphäre garantiert. Ein Badezimmer steht den beiden anderen Schlafzimmern zur Verfügung und sorgt für Harmonie und Funktionalität.
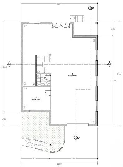
Im Dachgeschoss eröffnet das Haus ein neues Kapitel. Ein großzügiges Wohnzimmer mit Kaminofen bietet vielfältige Nutzungsmöglichkeiten, beispielsweise als Fitnessraum, Büro oder Wohn- und Kinoraum. Zwei weitere Räume vervollständigen diese Etage und laden zum Empfang von Gästen oder zur Umsetzung neuer Projekte ein.
Das Erdgeschoss bietet eine geräumige Garage, einen Technikraum, eine Waschküche, Abstellräume und eine große Eingangshalle mit angrenzendem Badezimmer.
Im Außenbereich hinter dem Haus lädt eine offene, landschaftlich gestaltete Terrasse mit Nebengebäuden, Grill und Holzofen zu langen Nachmittagen und geselligen Treffen mit Freunden ein. Die zweite, geschlossene Garage bietet zusätzliche Flexibilität, während die 270 m² große Terrasse vielfältige Gestaltungsmöglichkeiten bietet – ob als Blumengarten, gepflegter Gemüsegarten oder als Freizeitbereich im Freien.
Es bietet außerdem:
- Wärmerückgewinnungssystem und Kamin
- Einbruchmeldeanlage
- Wärmepumpe für Warmwasser und Zentralheizung
- Automatisches Tor
Eine hervorragende Gelegenheit für alle, die ein komplettes Haus in ruhiger, nahegelegener Lage mit idealen Bedingungen für Familien suchen.
Newimo Immobilienmakler
Wir sind eine Immobilienagentur, der es nicht nur darum geht, die Bedürfnisse unserer Kunden zu befriedigen. Wir wollen sie übertreffen!
Ob Kauf oder Verkauf oder sogar Miete einer Immobilie, wir arbeiten individuell mit Ihnen zusammen, um gemeinsam die ideale Lösung zu finden. Unser Team ist erfahren, qualifiziert und auf den Operationserfolg ausgerichtet. Wir verstehen, dass ein gutes Immobilienportfolio nicht ausreicht, um die Bedürfnisse derjenigen zu erfüllen, die nach einer Immobilienlösung suchen. Daher ist es unser Anliegen, den Markt zu studieren und die beste Empfehlung anzubieten.
Sagen Sie uns, wonach Sie suchen, und wir helfen Ihnen gerne weiter.
Art der Immobilie
Haus
Typologie
3 Zimmer
Objektiv
Verkaufen
Zustand
renoviert
Preis
549 000 €
Baujahr
1986
Land
Portugal
Bezirk
Aveiro
Standort
Aveiro
Gemeinde
São Bernardo
Bereich
N/D
Allgemeine Merkmale
Aufteilung
|
Aufteilung |
Bereich |
Etage |
Walls |
Decken |
Kommentare |
|
| |
Elektronische Haussteuerung
O que é a pesquisa responsável
Esta pesquisa permite obter resultados mais ajustados à sua disponibilidade financeira.